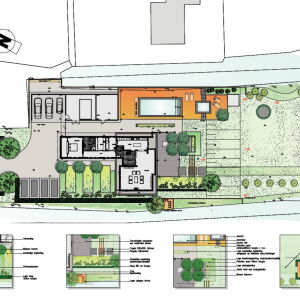
Landelijke villa Nieuw-Lekkerland
Deze landelijke villa is nog niet geheel gereed. Het resultaat kunt u binnen afzienbare tijd tegemoet zien.
Deze foto's wilden we u echter niet onthouden.
De oude woning is totaal onherkenbaar geworden, waardoor we eigenlijk kunnen spreken van een nieuwe woning.
Schetsen en Ontwerp
Bouwvergunning
Engineering
Keuze aannemer
Bouwbegeleiding
