Overzicht van vrije bouwkavels
Op zoek naar een vrije bouwkavel om uw droom om een eigen woning of bedrijfspand te bouwen waar te maken? Dan bent u vast benieuwd of er in een bepaalde omgeving een bouwkavel te koop is die aansluit bij uw visie. Om u op weg te helpen houden wij op deze pagina de vrije bouwkavels in onze regio bij welke te koop zijn. Wij leggen per project uit wat de voorwaarden voor het bouwen zijn, hoe de omgeving is en wat voor u de mogelijkheden zijn.
Bij het bouwen van een woning in een nieuwbouwwijk komt veel kijken. We helpen u graag op weg tijdens een vrijblijvende kennismaking. Zo kunt u goed geïnformeerd keuzes maken om zo snel mogelijk tot uw droomwoning te komen!

De Plantage - Geldermalsen
De Plantage is een nieuwe wijk in Geldermalsen. Een groen en centraal gelegen stukje Betuwe, op slechts 50 minuten van Amsterdam en Rotterdam. In deze ruimtelijke wijk zijn er verschillende mogelijkheden tot wonen, van vrije bouwkavels tot prachtige starterswoningen.
Heeft u interesse in een van de beschikbare bouwkavels in De Plantage? Lees dan snel verder voor de mogelijkheden.

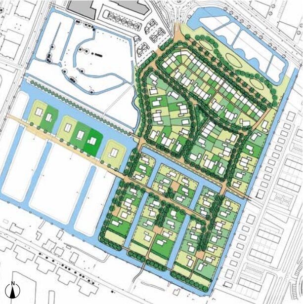
De Vrije Wilg - Dordrecht
De Vrije Wilg is een plek waar alle voorzieningen bij in de buurt zijn. Met een half uurtje staat u in hartje Rotterdam en vanuit thuis loopt u rechtstreeks het weidse buitengebied in dat grenst aan de Biesbosch. Op de Vrije Wilg komen vanaf februari 2019 maar liefst 24 zelfbouwkavels beschikbaar, waar u een woning kunt (laten) bouwen tot vier bouwlagen.
Wilt u wonen in De Vrije Wilg en op één van deze 24 zelfbouwkavels uw droomhuis realiseren? Bekijk dan snel onze mogelijkheden.

De Torensteepolder - Numansdorp
In De Torensteepolder te Numansdorp vindt de ontwikkeling van een nieuwe wijk plaats. Voor deze nieuwe wijk heeft de toekomstige particuliere eigenaar de keuze tussen vrije bouwkavels en landgoederen op een unieke locatie.
Deze nieuwe wijk zal aangelegd worden met sierlijk water en bevindt zich vlak bij de golfbaan, haven en haringvliet van Numansdorp. Grijpt u deze buitenkans?
Meer informatie over bouwkavel te koop de Torensteepolder, Numansdorp

Tuinen van Mollenburg - Gorinchem
In Gorinchem is een nieuwe prachtplek voor een woonwijk in de maak: in het woongebied Tuinen van Mollenburg komen maar liefst 29 vrije bouwkavels beschikbaar in vier fases. Op deze bouwkavels kunnen particulieren zelf hun woning bouwen.
In de Tuinen van Mollenburg woon je centraal in Nederland, het ligt namelijk vlakbij de A15 en A27. Lijkt wonen in Gorinchem u ook wel wat? Lees dan hier snel verder over de mogelijkheden.
Meer informatie over bouwkavel te koop Tuinen van Mollenburg, Gorinchem

Het landgoed - Almere
Wonen omringd door bos en water, een droom van vele mensen! Is dit ook uw droom? U kunt deze droom werkelijkheid maken bij Het Landgoed in Almere. Hier wordt namelijk aan het de bosrand een prachtige landelijke villa gebouwd.
Het Landgoed is een nieuwbouwwijk met een prachtige thema. Bekijk snel de mogelijkheden en kansen die dit gebied voor u kan bieden!

Land van Matena - Papendrecht
Centraal aan de rand van de nieuwe rondweg, die de nieuwbouwwijken Baanhoek (Sliedrecht) en Oostpolder (Papendrecht) verbindt met bestaande wijken langs de A15, ligt het woongebied Land van Matena.
Land van Matena is een nieuwbouwwijk, waar rust, ruimte en natuur centraal staan. De komende jaren worden hier exclusieve woningen gerealiseerd.

Stadswerven, Stadspolders, Sterrenburg, Dubbeldam of in de binnenstad - Dordrecht
Dordrecht is een oude stad met pit. Het koestert zijn rijke historie, maar heeft oog voor vernieuwing. Er is de afgelopen jaren veel geïnvesteerd om de stad nog aantrekkelijker te maken.
In de komende jaren komen er een groot aantal bouwkavels vrij in Dordrecht, onder andere in de wijken Stadswerven, Stadspolders, Sterrenburg, Dubbeldam en zelfs in de binnenstad.
Meer informatie over bouwkavel te koop in Dordrecht

Volgerlanden - Hendrik-Ido-Ambacht
De Volgerlanden is een wijk die vanaf eind vorige eeuw in ontwikkeling is. Inmiddels staan er ruim 3.800 woningen. De komende jaren komen daar nog ongeveer 1.200 woningen bij, vooral in het Oostelijke deel. Het gebied kent een rijke historie die teruggaat tot in de middeleeuwen.
Wilt u dat één van deze 1.200 woningen van u wordt? Bekijk dan snel de mogelijkheden voor Volgerlanden.