Recreatiepark Heelderpeel
- Architect recreatiewoningen - Brand BBA I BBA Architecten is door de opdrachtgever gevraagd om een ontwerpplan te maken die de huidige kwaliteit van recreatieparken moet verbeteren en de slag moet maken naar toekomstgericht recreëren en verblijven.
In samenwerking met de gemeente Maasgouw is dan ook gekeken naar een optimale invulling voor duurzame recreatie.
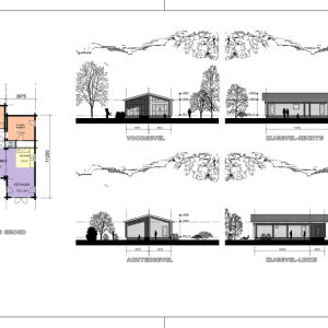
In dit kader zullen woningen gebouwd worden die zich kenmerken door bijzondere architectuur en voldoen aan de hoogste CO2 normen.
Deze woningen zijn geheel geïntegreerd in het glooiende landschap.
Het masterplan dat we hebben gemaakt voorziet in ca. 200 woningen in 5 verschillende uitvoeringen. Daarnaast is er een recreatiecentrum ontworpen met diverse voorzieningen zoals; receptie, zwembad, horeca, winkel en kantoor.
Al met al een ambitieus plan in een prachtig gebied met vele mogelijkheden.
